Kapili at Hoopili 1402
カポレイ・コオリナ | 91-4099 Hikuono Street, Kapolei, HI 96707
- 価格
- $703,830
- 約111,144,610円
- 部屋数
- 3ベッド/2バスルーム
- 建物面積
- 1266ft²(約117m²/約35坪)
- 面積単価
- 87,791円/ft²(約3,175,560円/坪)
詳細情報
More Information- 物件名
- Kapili at Hoopili 1402
- 所在地
- 91-4099 Hikuono Street, Kapolei, HI 96707
- 価格
-
$703,830(約 ¥111,144,610*)
※日本時間0時の為替レートにて自動計算
- 管理費等
-
$715 (約 ¥112,908*) / 月額
※日本時間0時の為替レートにて自動計算
- 間取り
- 3ベッド / 2バスルーム
- 権利形態
- 所有権
- 土地面積
- 117m2(35坪)
- ラナイ面積
- 0m2(0坪)
- 竣工年
- 2025年
- 駐車場
- 2台
- 売出期間
- 57日
- 内覧可能日
- 2025-12-30
- 眺望
- 無し
- 共用施設
- コミュニティプール,ドッグパーク,プレイグラウンド
- 設備
- スプリット型壁掛けエアコン,ガレージリモコン,ブラインド,食洗機,ディスポーザル,乾燥機,住宅保証,電子レンジ,レンジ/オーブン,冷蔵庫,洗濯機,給湯器
- 構造
- ダブルウォール工法, 鉄骨フレーム, 木造フレーム
- 管理費に含む物
- 無し
- 固定資産税 ー
- MLS番号
- 202525590
- TMK番号
- 1-9-1-018-028-0226
- リスティング会社
- D R Horton Hawaii, LLC
物件概要
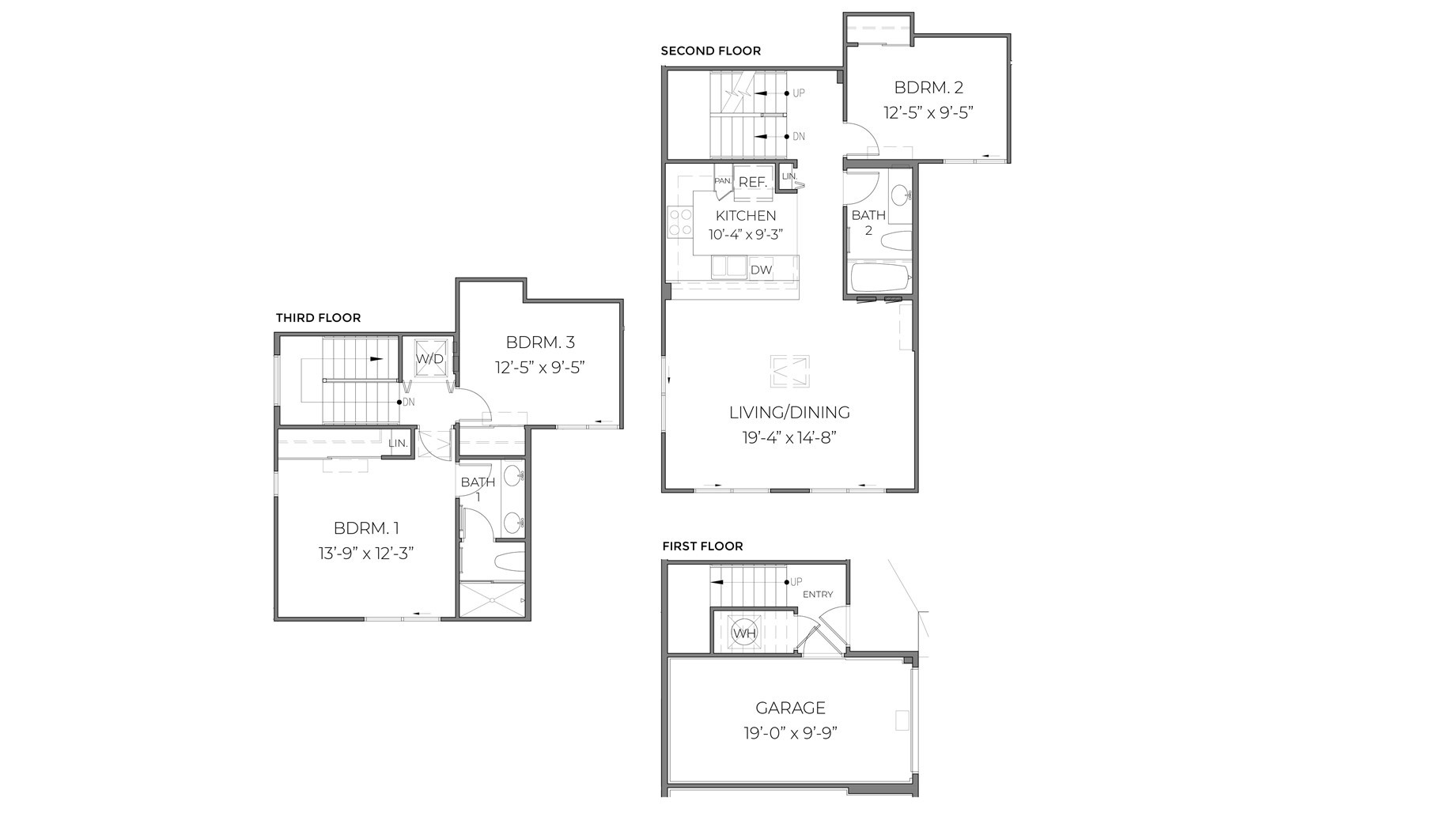
Property Summaryこの3階建て、3ベッドルーム、2バスルームのコンドミニアムは、1,266平方フィート(正味)の居住空間と1階にガレージを備えています。この住宅に足を踏み入れると、ステンレス製の家電製品と白いキャビネットを備えたキッチンが迎えてくれます。キッチンはダイニングルームとリビングルームにシームレスにつながっています。メインフロアには、スライドドアクローゼット付きのセカンドベッドルームと、フルバスルームがあります。3階には、スライドドアクローゼット付きの3つ目のベッドルーム、スライドドアクローゼット付きのメインベッドルーム、ダブルシンクの洗面台とウォークインシャワー付きの専用バスルームがあります。全館スプリットエアコンに加え、レンジ/オーブン、電子レンジ、レンジフード、食器洗い機、冷蔵庫、洗濯機/乾燥機などの最新家電が快適な暮らしをサポートします。「NOW」(レッドタグイベント)価格の適用を受けるには、2026年1月2日から2026年1月25日の間にレッドタグイベント物件の契約を締結し、2026年3月31日までにエスクローを完了する必要があります。
物件概要
This three story 3 bedroom and 2 bathroom condominium consists of 1,266 square feet (net) of living area with an attached garage on the ground floor. When you step into this home, you will be greeted by the kitchen featuring stainless steel appliances and white cabinets. The kitchen flows seamlessly into the dining and living room. The main floor consists of a secondary bedroom with a sliding door closet, and a full bathroom. The third level features a third bedroom with a sliding door closet and the primary bedroom with a sliding door closet and ensuite bathroom with a double vanity and walk-in shower. Whole house split air conditioning and modern appliances including a range/oven, micro-hood, dishwasher, refrigerator, and washer/dryer allow for ease of living. To receive the “NOW” (Red Tag Event) price, buyer must execute a contract on a Red Tag Event home between 01/02/26 and 01/25/26, and close escrow on or before 3/31/26.
免責
該物件情報はHicentral MLS Ltd.,のMulti Listing Serviceの情報を元にしております。|Hicentral MLS,Ltd.,の情報はその内容の正確性を保証したものではありません。|Family International Realty LLCはハワイ州のHonolulu Board of REALTERS®の会員です。|建物比率はMLSに掲載の固定資産税評価額総額から建物評価額の割合を表示しております。|日本円表示は日本時間0時の為替レートにて自動計算されております。


